
















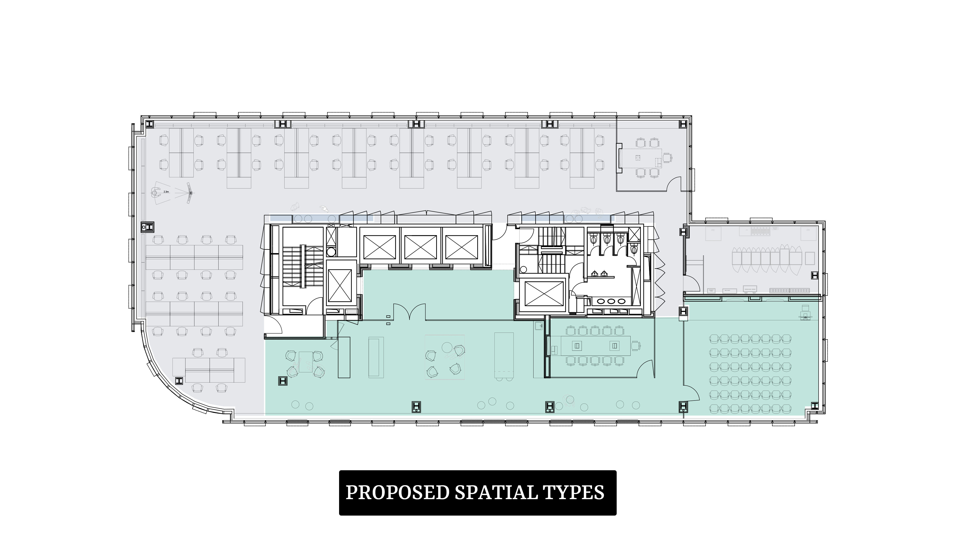
This 800 sq.m. office in central Tel Aviv was designed for a leading financial-media and software company, combining technological precision with material experimentation to support focus, collaboration, and creative work.
The program includes open work areas, enclosed meeting rooms, an auditorium, and shared social spaces — all calibrated to meet the client’s high standards for cybersecurity, connectivity, and flexibility. The design embraces a clear spatial hierarchy while fostering fluid movement and interaction. At the core of the concept is a play of contrasts: industrial and natural, soft and hard, bold and restrained. This duality is most vividly expressed in the use of fabric — both as an acoustic element and as a design motif. Fabric textures were translated into the surface of cast concrete tiles through advanced material processing, creating a tactile language that blurs the boundary between surface and depth, rawness and detail. The result is a workspace that speaks to both function and feeling — a carefully orchestrated environment that reflects the evolving identity of work in the financial and media industries, where innovation and infrastructure must coexist with culture and craft.
Team: Raz Rozkin, Shachar Beer
Photography: Dor Kedmi





Team: Raz Rozkin, Shachar Beer
Photography: Dor Kedmi

































This 800 sq.m. office in central Tel Aviv was designed for a leading financial-media and software company, combining technological precision with material experimentation to support focus, collaboration, and creative work.
The program includes open work areas, enclosed meeting rooms, an auditorium, and shared social spaces — all calibrated to meet the client’s high standards for cybersecurity, connectivity, and flexibility. The design embraces a clear spatial hierarchy while fostering fluid movement and interaction. At the core of the concept is a play of contrasts: industrial and natural, soft and hard, bold and restrained. This duality is most vividly expressed in the use of fabric — both as an acoustic element and as a design motif. Fabric textures were translated into the surface of cast concrete tiles through advanced material processing, creating a tactile language that blurs the boundary between surface and depth, rawness and detail. The result is a workspace that speaks to both function and feeling — a carefully orchestrated environment that reflects the evolving identity of work in the financial and media industries, where innovation and infrastructure must coexist with culture and craft.
Interior Design
800 m²
Tel Aviv, Israel
2017
Completed
Team: Raz Rozkin, Shachar Beer
Photography: Dor Kedmi




















